Villa a schiera in vendita

Rubiera, Via Fontana - Fontana
€ 320.000
5 locali 5 locali
170 Mq 170 Mq
2 bagni 2 bagni

Villa a schiera in vendita

Rubiera, Via Fontana - Fontana

Descrizione annuncio

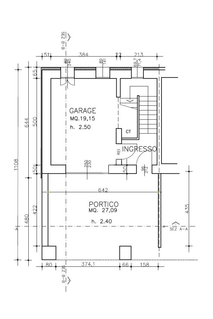
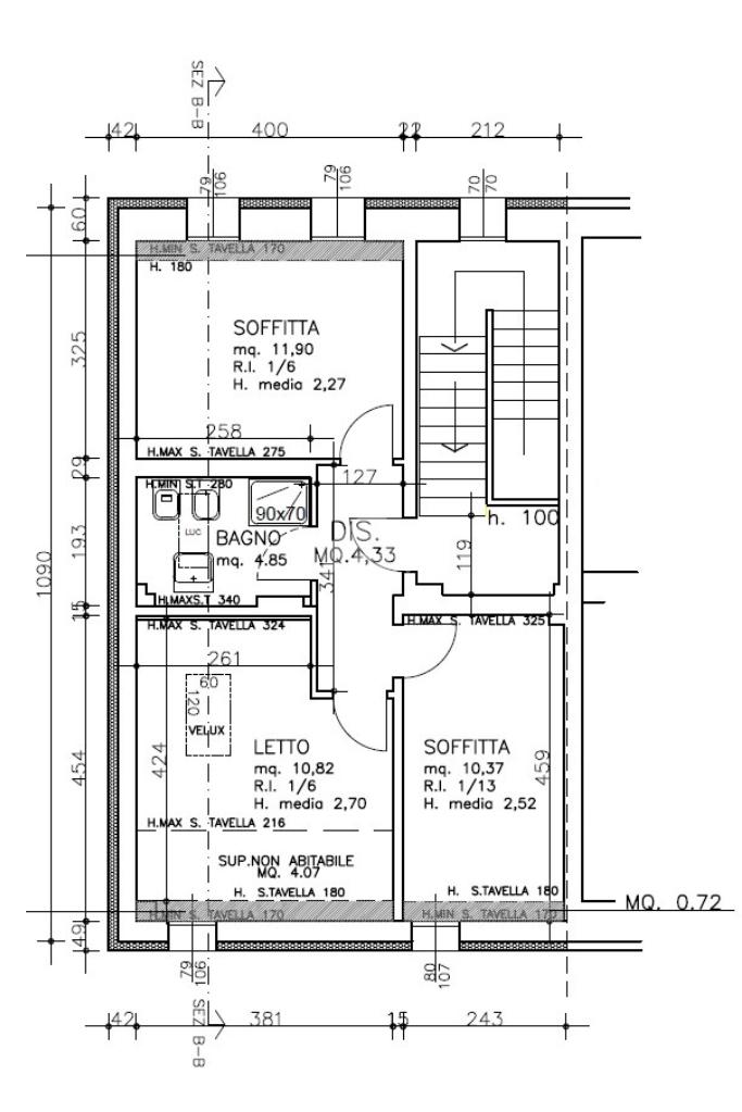
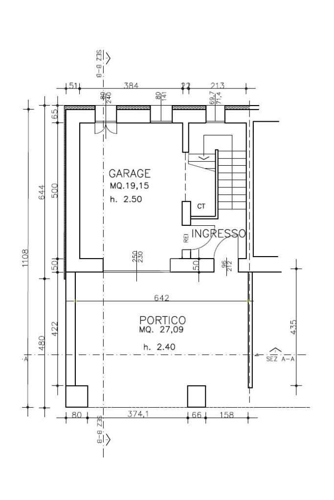
FONTANA - VILLETTA A SCHIERA RISTRUTTURATA A NUOVO In splendida zona immersa nel verde della campagna, proponiamo in vendita una villa a schiera centrale finemente ristrutturata a nuovo e certificata in Classe Energetica A4, dotata delle più moderne tecnologie per il massimo comfort abitativo e il risparmio energetico. La proprietà si sviluppa su tre piani e comprende due porzioni di giardino privato, una adiacente all’abitazione e una seconda area separata, ideale come zona orto, area relax o per l’installazione di una piscina. Piano Terra:- Ampio portico ideale per pranzi all’aperto e momenti di Garage con portone basculante sezionale e accesso diretto al Locale tecnico dedicato agli Ingresso con scala interna che porta al piano superiore. Piano Primo – Zona Giorno:- Cucina abitabile moderna e Soggiorno confortevole con affaccio Bagno finestrato con doccia. Piano Secondo – Zona Notte:- Tre camere da letto, spaziose e ben Secondo bagno con doccia. Spazi Esterni:- Giardino privato adiacente alla casa, ideale come area verde per bambini e Secondo appezzamento di terreno privato, perfetto per chi desidera un orto, un ulteriore spazio relax o una futura piscina. Dotazioni e Finiture di Pregio:- Infissi in PVC di ultima generazione con scuri in alluminio- Zanzariere già installate- Impianto fotovoltaico per massima efficienza energetica- Pompa di calore- Riscaldamento a pavimento- Cappotto termico da 14 cm- Travi in legno a vista sbiancate, che donano un tocco elegante e moderno agli ambienti- Garage con basculante sezionale- Materiali e finiture di alta qualità in tutta l’abitazione La soluzione è libera subito, pronta per essere abitata senza alcun perfetta per chi cerca tranquillità, ampi spazi, efficienza energetica e un contesto immerso nel verde a pochi minuti dai servizi. PER MAGGIORI INFORMAZIONI O FISSARE UNA VISITA CONTATTACI AL 0522.1724850 O 348.6866572
Mostra tutto

Nelle vicinanze

Ricariche auto elettriche Ricariche auto elettriche
EnelX EVA+ Campogalliano Nordiconad
2,0 Km
Campogalliano Supercharger
2,9 Km
Scuole Scuole
Scuola Primaria Statale “G. Marconi”
2,0 Km
Scuola Media Statale “San Giovanni Bosco”
2,1 Km
Scuola Primaria statale San Faustino
2,9 Km
Farmacia Farmacia
Farmacia
2,0 Km
Supermercati Supermercati
CONAD
2,0 Km
COOP
2,2 Km
DESPAR
3,0 Km
Ristoranti Ristoranti
La Cà di Mat - La Vecchia Cascina
960 m
La Locanda di Sant' Agata
1,3 Km
Laghi
2,2 Km
La Prateria
2,3 Km
Ristoranti
2,4 Km
Mostra tutto

Caratteristiche

Rif.:
61142655
Piano:
Su più livelli di 3
Totale piani:
3
Box:
1
Camere da letto:
3
Arredamento:
Assente
Mostra tutto
Prezzo Prezzo
€ 320.000
Rata mutuo Rata mutuo
€ 1.475 / mese
Spese annue Spese annue
€ 0
Proponi il tuo prezzoProponi il tuo prezzo

Classe Energetica

A4
A4
A4
A4
A4
A4
A4
A4
A4
EP invernale del fabbricato:
EP estiva del fabbricato:
Anno di costruzione:
2025
Riscaldamento:
Autonomo
Tipo impianto:
A pavimento
Tipo alimentazione:
Metano

Ti interessa visionare l'immobile?

Fissa un appuntamento  Fissa un appuntamento

Richiedi informazioni

* Questi campi sono obbligatori

Calcola il tuo mutuo

Semplice e senza impegno
Anticipo

( % )
Mutuo

( % )

pochi semplici passi

inserisci i tuoi dati
Questionario completato
Grazie per aver richiesto un appuntamento senza impegno con un nostro Consulente del Credito e Assicurativo.

Hai inserito correttamente tutti i dati necessari e a breve riceverai una e-mail con un link da convalidare per inviare i tuoi dati.
Affiliato
Studio Beta Srl
Via Emilia Est, 12/a 42048 Rubiera (RE)

Il nostro staff


  • Piero Ruffino
    Affiliato

  • Damiano Franceschini
    Collaboratore

  • Elena Negrini
    Collaboratrice

  • Antonio Petito
    Responsabile

  • Gabriele Orlandini
    Collaboratore
Via Emilia Est, 12/a 42048 Rubiera (RE)
Zona: Rubiera-San Faustino-Fontana-Bagno-Marzaglia-Cittanova
Mostra su mappa
Orari: Lunedì - Venerdì 09.00 - 13.00 / 15.00 - 20.00 Sabato 09.00 - 13.00 / 15.00 - 18.00
Affiliato
Studio Beta Srl
Via Emilia Est, 12/a 42048 Rubiera (RE)

2025 Tecnocasa Franchising S.p.A. - P. IVA 08365160152 - Via Monte Bianco 60/A 20089 Rozzano (MI). Ogni agenzia ha un proprio titolare ed è autonoma. Privacy policy | Policy utilizzo | Cookie policy