Casa indipendente in vendita

Rubiera, Via Emilia Est
€ 120.000
4 locali 4 locali
150 Mq 150 Mq
2 bagni 2 bagni

Casa indipendente in vendita

Rubiera, Via Emilia Est

Descrizione annuncio

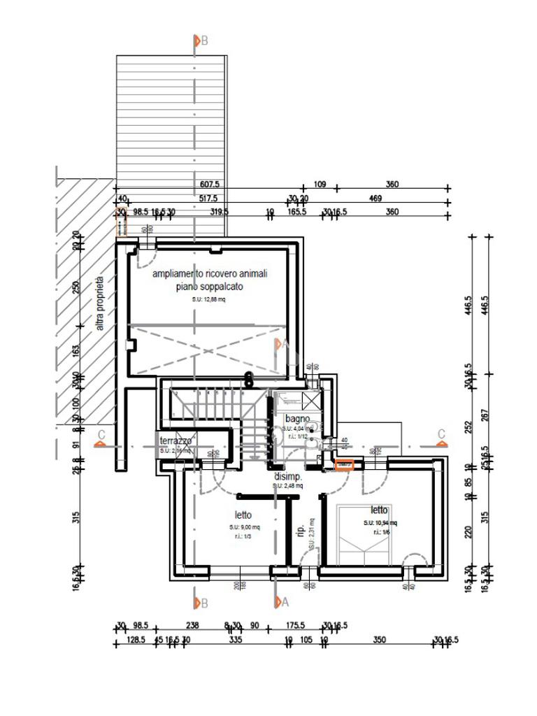
VICINANZE RUBIERA - SOLUZIONE INDIPENDENTE IMMERSA NEL VERDE In splendida posizione riservata e circondata dal verde, a pochi minuti dal centro di Rubiera, proponiamo terratetto indipendente con progetto di ristrutturazione edilizia e ampliamento già approvato dal Comune. Un’opportunità ideale per chi desidera realizzare una casa su misura, in un contesto tranquillo ma comodo ai servizi. Dati principali:Lotto 400 mqSuperficie totale costruita 133 mq Composizione:Abitazione 81 mqLocale accessorio + Garage 52 mq Il progetto approvato consente la riqualificazione completa dell’immobile con possibilità di ampliamento, offrendo l’occasione di creare una soluzione moderna, efficiente e personalizzata secondo le proprie esigenze abitative. Punti di forza:Totale indipendenzaArea verde privataContesto tranquillo e riservatoA pochi minuti dal paese e dai principali serviziProgetto già approvato (risparmio di tempi e costi burocratici) Soluzione perfetta per chi desidera investire in un immobile con grande potenziale di valorizzazione. PER MAGGIORI INFORMAZIONI O FISSARE UNA VISITA CONTATTACI AL 0522.1724850 O 348.6866572
Mostra tutto

Nelle vicinanze

Trasporto pubblico Trasporto pubblico
stazione di Rubiera
stazione di Rubiera
490 m
Trasporto pubblico
650 m
Incrocio via Mascagni
Incrocio via Mascagni
1,4 Km
Ricariche auto elettriche Ricariche auto elettriche
Rubiera Gramsci | EnelX
180 m
Rubiera Melato | EnelX
410 m
Rubiera Marsala | EnelX
870 m
Conad Rubiera | EnelX
1,3 Km
Scuole Scuole
Scuola Primaria "De Amicis"
310 m
Scuola Secondaria di Primo Grado "Prampolini"
350 m
Scuole
460 m
Scuola Primaria "Marco Polo"
1,2 Km
Scuola Primaria statale San Faustino
2,6 Km
Farmacia Farmacia
Farmacia
790 m
Farmacia Comunale
1,4 Km
Supermercati Supermercati
SISA
260 m
Sigma
380 m
Coop
790 m
Mercatone Uno
950 m
Conad San Biagio
1,4 Km
Bar Bar
Il Patio
680 m
Ristoranti Ristoranti
Clinica gastronomica
180 m
CRU•DO
770 m
Rita Il Sole
810 m
Shibuya
940 m
Magik Burger
950 m
Mostra tutto

Caratteristiche

Rif.:
61181056
Piano:
Su più livelli di 2
Totale piani:
2
Box:
1
Camere da letto:
2
Arredamento:
Assente
Mostra tutto
Prezzo Prezzo
€ 120.000
Rata mutuo Rata mutuo
€ 566 / mese
Spese annue Spese annue
€ 0
Proponi il tuo prezzoProponi il tuo prezzo

Classe Energetica

G
G
G
G
G
G
G
G
G
EP invernale del fabbricato:
EP estiva del fabbricato:
Anno di costruzione:
1950
Riscaldamento:
Assente

Ti interessa visionare l'immobile?

Fissa un appuntamento  Fissa un appuntamento

Richiedi informazioni

Clicca su Leggi per aprire l'informativa
* Questi campi sono obbligatori

Calcola il tuo mutuo

Semplice e senza impegno
Anticipo

( % )
Mutuo

( % )

pochi semplici passi

inserisci i tuoi dati
Questionario completato
Grazie per aver richiesto un appuntamento senza impegno con un nostro Consulente del Credito e Assicurativo.

Hai inserito correttamente tutti i dati necessari e a breve riceverai una e-mail con un link da convalidare per inviare i tuoi dati.
Affiliato
Studio Beta Srl
Via Emilia Est, 12/a 42048 Rubiera (RE)

Il nostro staff


  • Piero Ruffino
    Affiliato

  • Damiano Franceschini
    Collaboratore

  • Elena Negrini
    Collaboratrice

  • Antonio Petito
    Responsabile

  • Gabriele Orlandini
    Collaboratore
Via Emilia Est, 12/a 42048 Rubiera (RE)
Zona: Rubiera-San Faustino-Fontana-Bagno-Marzaglia-Cittanova
Mostra su mappa
Orari: Lunedì - Venerdì 09.00 - 13.00 / 15.00 - 20.00 Sabato 09.00 - 13.00 / 15.00 - 18.00
Affiliato
Studio Beta Srl
Via Emilia Est, 12/a 42048 Rubiera (RE)

2026 Tecnocasa Franchising S.p.A. - P. IVA 08365160152 - Via Monte Bianco 60/A 20089 Rozzano (MI). Ogni agenzia ha un proprio titolare ed è autonoma. Privacy policy | Policy utilizzo | Cookie policy