Casa semindipendente in vendita

Modena, Stradello Giarola - Marzaglia Nuova
€ 300.000
6 locali 6 locali
197 Mq 197 Mq
2 bagni 2 bagni

Casa semindipendente in vendita

Modena, Stradello Giarola - Marzaglia Nuova

Descrizione annuncio

MARZAGLIA NUOVA - Casa con giardino privato in contesto rustico

In contesto esclusivo e riservato, immerso nel verde della campagna e nella massima tranquillità, proponiamo in vendita abitazione con ampio giardino privato, inserita all’interno di una casa rustica restaurata e suddivisa in sole 4 unità abitative.

L’immobile si sviluppa su più livelli ed è così composto:

- Piano terra: ingresso indipendente

- Primo piano: luminosa zona giorno con cucina e soggiorno open space, bagno

- Secondo piano: due camere da letto di generose dimensioni e secondo bagno

Completano la proprietĂ  garage di pertinenza, posto auto privato e impianto fotovoltaico ad uso esclusivo, elemento che garantisce efficienza energetica e risparmio nei consumi.

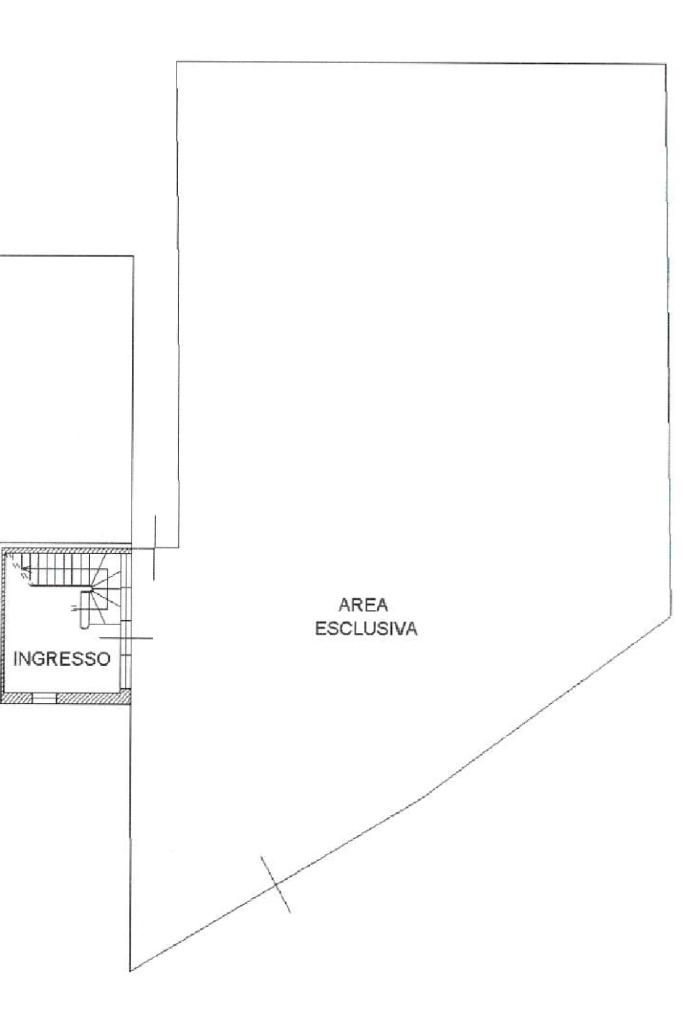
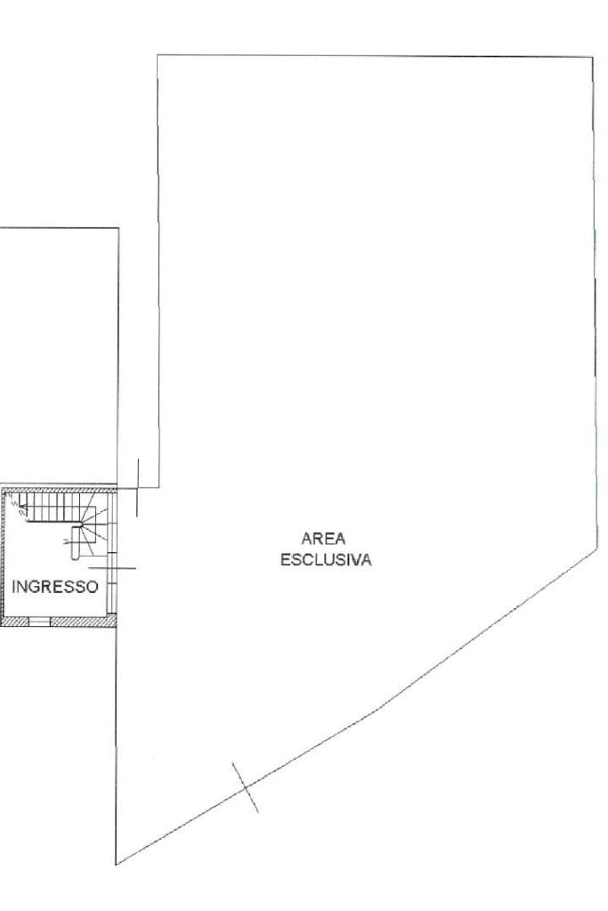
L’abitazione è circondata da un ampio giardino privato, ideale per chi desidera vivere all’aria aperta, organizzare momenti conviviali o godere della quiete del verde.

Soluzione ideale per chi cerca indipendenza, comfort e tranquillitĂ , senza rinunciare alla qualitĂ  di una ristrutturazione recente e a un contesto di charme.

Posizione: campagna, contesto verde e silenzioso

Tipologia: rustico ristrutturato – 4 unità

Spazi esterni: giardino privato

Dotazioni: fotovoltaico, garage, posto auto

L'immobile è attualmente locato e si libera a dicembre 2026.

PER MAGGIORI INFORMAZIONI O FISSARE UNA VISITA CONTATTACI AL 0522.1724850 O 348.6866572

Mostra tutto

Nelle vicinanze

Ricariche auto elettriche Ricariche auto elettriche
Cittanova Magnaghi | ENELX BY HERA
2,0 Km
Rubiera Melato | EnelX
2,9 Km
EnelXt EVA+ Grandemilia Modena
2,9 Km
Scuole Scuole
Scuola Primaria Statale "Lanfranco"
1,8 Km
Farmacia Farmacia
Farmacia Grandemilia
2,7 Km
Supermercati Supermercati
Extracoop
2,8 Km
Negozi Negozi
OVS
2,7 Km
Caporiccio
2,7 Km
Goldenpoint
2,7 Km
Mixeri
2,7 Km
Guess
2,7 Km
Bar Bar
Il Patio
2,6 Km
Caffetteria
2,7 Km
Ristoranti Ristoranti
La Capannina
2,2 Km
Trattoria La Rana
2,4 Km
Old Wild West
2,7 Km
Dispensa Emilia
2,7 Km
Pizzikotto
2,7 Km
Mostra tutto

Caratteristiche

Rif.:
61162511
Piano:
3 di 3 (Piano su piĂš livelli)
Box:
1
Posti auto:
1
Camere da letto:
2
Arredamento:
Assente
Mostra tutto
Prezzo Prezzo
€ 300.000
Rata mutuo Rata mutuo
€ 1.418 / mese
Proponi il tuo prezzoProponi il tuo prezzo

Classe Energetica

E
E
E
E
E
E
E
E
E
Anno di costruzione:
1960
Riscaldamento:
Autonomo
Tipo impianto:
A radiatori
Tipo alimentazione:
GPL

Ti interessa visionare l'immobile?

Fissa un appuntamento  Fissa un appuntamento

Richiedi informazioni

Clicca su Leggi per aprire l'informativa
* Questi campi sono obbligatori

Calcola il tuo mutuo

Semplice e senza impegno
Anticipo

( % )
Mutuo

( % )

pochi semplici passi

inserisci i tuoi dati
Questionario completato
Grazie per aver richiesto un appuntamento senza impegno con un nostro Consulente del Credito e Assicurativo.

Hai inserito correttamente tutti i dati necessari e a breve riceverai una e-mail con un link da convalidare per inviare i tuoi dati.
Affiliato
Studio Beta Srl
Via Emilia Est, 12/a 42048 Rubiera (RE)

Il nostro staff


  • Piero Ruffino
    Affiliato

  • Damiano Franceschini
    Collaboratore

  • Elena Negrini
    Collaboratrice

  • Antonio Petito
    Responsabile

  • Gabriele Orlandini
    Collaboratore
Via Emilia Est, 12/a 42048 Rubiera (RE)
Zona: Rubiera-San Faustino-Fontana-Bagno-Marzaglia-Cittanova
Mostra su mappa
Orari: LunedĂŹ - VenerdĂŹ 09.00 - 13.00 / 15.00 - 20.00 Sabato 09.00 - 13.00 / 15.00 - 18.00
Affiliato
Studio Beta Srl
Via Emilia Est, 12/a 42048 Rubiera (RE)

2026 Tecnocasa Franchising S.p.A. - P. IVA 08365160152 - Via Monte Bianco 60/A 20089 Rozzano (MI). Ogni agenzia ha un proprio titolare ed è autonoma. Privacy policy | Policy utilizzo | Cookie policy